Ir para o conteúdo principal

Solicitação de proposta

Paletização

Preencha o maior número possível de campos e, em seguida, clique em "Enviar pedido de orçamento". Pode introduzir informações adicionais para um pedido de informação alargado ou um orçamento individual no final do formulário, em "Informações adicionais".

Dados gerais:
O que pretende armazenar?
Design de estantes:
Instalação/utilização:
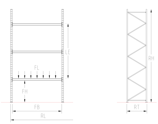
Dimensões da estante:
(opcional, ver legenda para explicação das unidades).
Capacidade de carga:
(Consultar a legenda para a explicação das unidades)
Para instalação no exterior com telhado:
Cor da estante:
Montagem:
Beneficie de uma montagem especializada pelas nossas equipas de montagem OHRA formadas.
Informações adicionais:
Absenden